Příspěvky

Zobrazují se příspěvky z říjen, 2021

DDM

Obrázek
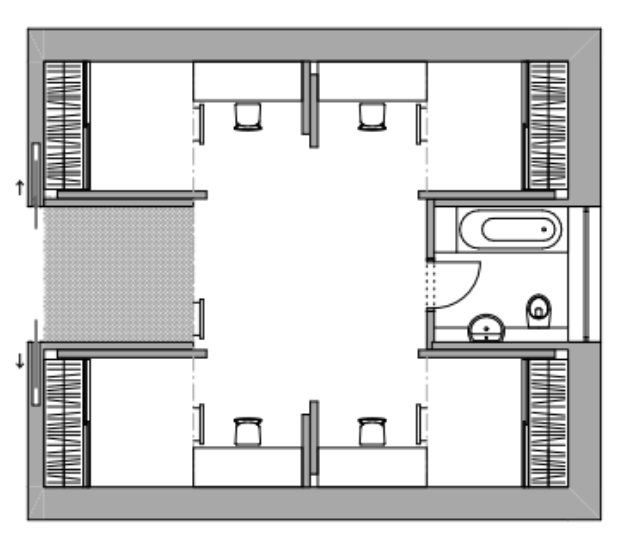
Další schůzka s architekty proběhla ve čtvrtek. Píšu až dneska, protože mě celý včerejšek bolela hlava. Moje malé prokletí. Tajně doufám, že se to po stěhování na venkov zlepší. No ale k věci: Část domu, kde budou pokoje pro děti, je už snad víceméně finální. Říkám jí soukromě "dům dětí a mládeže". Vybrali jsme poslední návrh, se čtyřmi pracovně-herními prostory oddělenými odsouvacími zástěnami, a postelemi v podkroví. Vlastně jediný realizoval to, co manželka chtěla. Takhle nějak to má vypadat: Sice jsme úplně nechápali to horní patro (vlastně takové "pseudopatro", protože to nebude samostatné), ale ukázali nám to už v provizorním 3D modelu. Dává to smysl. Celé to bude vhodné pro obyvatele, kteří rádi někam lezou, což by u nás mělo být velmi vhodné.

Plány mají mít měřítko

Dneska další schůzka s architekty z Wobau. Totiž, nejprve na ni, zdá se, zapomněli, ale když jsme se připomněli, tak se rychle sehnali a připojili. Tak mínus bod za organizaci a plus za flexibilitu. Ukázalo se, že problém s příliš malou garáží byl na naší straně - špatně jsme posoudili rozměry. Totiž, na plánu bylo napsáno "měřítko 1:100", ale když máte jen PDFko a nevíte původní rozměry papíru... Poučení pro příště je grafické měřítko. A garáž se musí přece jenom trochu zvětšit, rezerva by prý měla být nejmíň metr.  U půdorysného tvaru už tedy zůstaneme, architekti přeřešili severovýchodní křídlo - dětskou část domu. Zajímavé. Překopou taky kuchyň podle manželčina návrhu. Zalomení západního křídla, můj geniální architektonický nápad, se dělat nebude. Zhoršilo by to prý světelnost a při menší délce už to stejně není potřeba.

Volby

 Je to tam! Do Babistánu bych se byl vracel nerad. Ale ještě to úplně dobře nedopadlo. 

Dobré zprávy o studni

Pan soused s předáním spoluvlastnictví studny souhlasí, prý "podepíše cokoliv". K ničemu mu to ostatně není, takže jediný důvod nesouhlasit by byl, kdyby se mu nelíbily naše stěhovací záměry. Tak to je dobře, že s tím nemá problém. Manželka vyemailovala z příslušného úřadu, že na studnu není ani potřeba ověření podpisu, takže soused nemusí ani na CzechPoint. Jinak odhady nákladů na demolici jsou 700 tisíc bez DPH. Vypadá to, že DPH budeme muset zaplatit přímo a zvlášť, že to tak u stavebních prací funguje. Taky jsme zjistili, že do garáže, jak je navržená v původním návrhu, by se nám nevešlo žádné rozumné auto.  

Vodoměrná šachta

Vodoměrná šachta do země nemůže, protože se na určené místo přípojky nevleze. Má-li se dodržet povinný odstup od ulice. Původně měla být přípojka jinde, ale nechali jsme ji posunout víc směrem k lesu. Jenže nás nenapadlo si ten odstup zjistit. 😞 Nejjednodušší je tedy asi vodovod zatím nepřipojovat - děda to bez něj asi snadno vydrží, když vydržel doteď. A šachtu prodat někde přes internet - protože když se bude připojovat nový dům, tak už nebude potřeba.

První návrh

Další online schůzka s architekty z Wobau, první opravdový návrh domu. Kromě drobných potíží s VC (vyřešeno výměnou laptopu s Linuxem za Chromebook) to šlo dobře. "Varianta Y" (půdorys vypadá trochu jako Y) hezky padne na vrstevnice pozemku (takže není třeba moc zapouštět ani zvedat) a vyhýbá se i klíčovým stromům (manželka je označila jako "prosím prosím zachovat"). Měli jsme řadu připomínek, ale jako startovní bod je to dobré (až mě to lehce překvapuje). Já jsem dokonce navrhl drobnou úpravu půdorysu, kterou všichni označili za dobrý nápad. Třeba jsem měl být taky architekt! Softwarové inženýrství je dneska out. Musíme taky vyřešit dočasné obývání pozemku a uskladnění věcí. Má žena zjistila, že i na ty "Unimo buňky" je potřeba stavební povolení, a to budeme nejspíš chtít dvě - jednu jako sklad a jednu obytnou. Architekti přišli s nápadem, jestli není lepší karavan, že na ten povolení netřeba když není připojen k sítím. Zajímavá možnost.  Jo, a když budet...